
随着市立五院周边片区城市更新项目二期建设的推进,已实施提升改造的槐苑广场崭新“亮相”。9月26日,槐苑广场提升建设项目方案公示,将改造成文化体育公园,配备大规模地下停车场,含商业和停车功能,占地面积约3.67公顷,总面积扩大一倍。
提升改造后槐苑广场总平面图
槐苑广场位于经十路北、济南市第五人民医院东侧,前身为槐荫公园。后拆除围墙改造,槐苑广场1999年建成并开放。2003年提升改造后,集喷泉、下沉广场、文体活动设施等于一体。2017年再次提升改造后,占地面积约1.8公顷,部分破损地面、乔灌木和草坪进行了更换,绿地率由原来的40%提升至67%,同时增设了健身器材场地以及休闲座椅等设施。
作为城市更新重点项目,槐苑广场再次迎来提升改造,广场北侧华联超市一并纳入改造范围。根据公示方案,新槐苑广场用地面积36673平方米,新增游客服务中心一处、多处下沉广场、地下商业。地上主要为绿地公园、活动场地、多个大型采光天窗、公厕、游客服务中心以及其他配套设施。
该项目在提升公园绿地与体育场功能的同时,对地下空间进行复合利用,建设地下智慧停车及配套商业设施,增加停车位供给,同时打造以儿童友好为主题,以文化、游憩、运动、交通、商业五大功能为核心的复合型城市综合体。
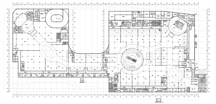
地下一层平面图
在公示方案中,原华联超市位置被绿地和活动场地替代,活动场地将结合景观专项进行深化设计。新规划地下一层建筑面积约2.31万平方米,主要为商业,主出入口位于经十路与营市东街交叉口,与现状过街天桥相衔接,次出入口位于营市东街中段东侧,两个出入口均设计有下沉广场。同时,新槐苑广场中部还设计有带采光天窗的大型下沉广场,与地下商业、地下停车场连通。地下二层、地下三层为停车场,总建筑面积约4.95万平方米,设置有1079个机动车停车位。
从公示方案看,地上公园两个主出入口均设在经十路北侧,地上公园东西两侧分别设多个次出入口、应急疏散口,公园东侧为消防车道,兼具后勤机动车出入。(新黄河记者:罗晓飞)